Ranch House Plans 1686 SF 3 Bed 2 Bath Open Floor Plan (Blueprints) - $149 - (Moultrie, GA)
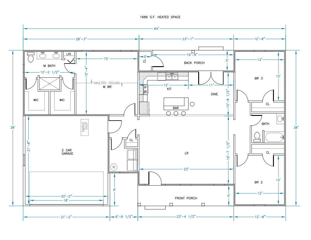
Two copies of these House Plans on paper using 11x17 size sheets for easy handling. Designed & drawn by Arnold Contracting - Drafting & Design in USA. Quote from customer: "They're the most accurate, and best designed plans I've ever dealt with." These construction plans include the following: Front, Back, & Side Elevations Floor Plan Foundation Plan (Concrete Slab) Structure Details Electrical & More! This house plan has 3 bedrooms & 2 bathrooms. The open floor plan has the master bedroom set apart from the other bedrooms, and has both front & back porches with a storage closet at one end of the back porch. The master bedroom has its own bathroom with double sink vanity, and 2 separate walk in closets. It is designed with 8' ceilings; however build per your choice if you prefer 9' ceilings. Plans for a nice home!! For materials list & pricing check with your local supplier or building contractor. In using these plans to build, be sure to follow all applicable building codes & regulations for your location area. If you're uncertain of your local codes, check with your local building/planning code official as to whether you need to have the plans approved by an engineer or other official. For additional sets of prints or to obtain a pdf file of these plans look for information in package.

ADVERTISEMENT
From ebay.com - 1 month ago
